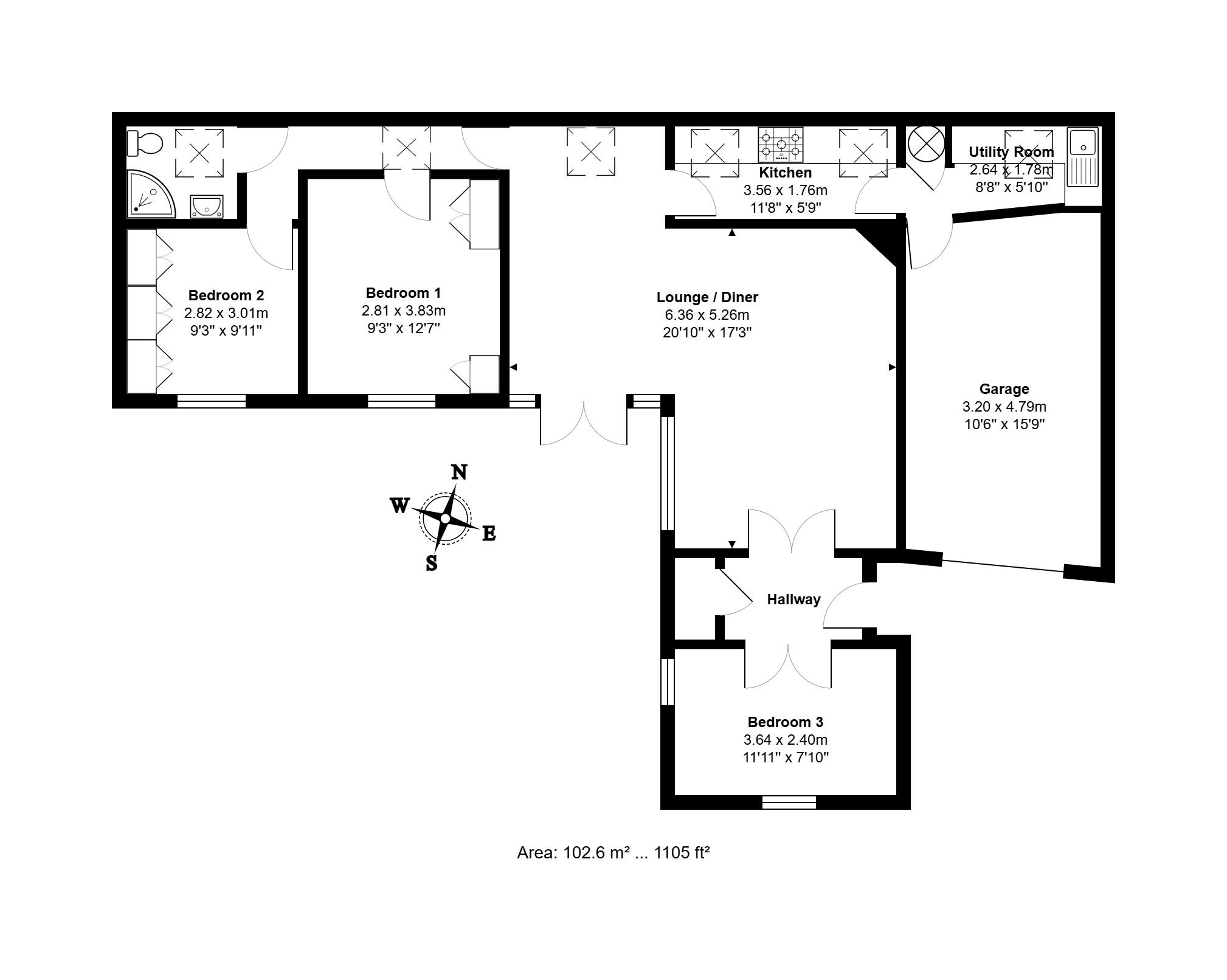
An Individual Detached Bungalow situated at the end of a quiet Cul de Sac and within walking distance of the Local Shops. The Stylish Accommodation is flexible and at present offers Lounge with Vaulted ceiling, Dining Area, Galley Kitchen, Utility, Study/Bedroom3, Two further Bedrooms, Shower Room and Garage with Mezzanine storage and Electric roller door plus parking in front. The Sunny Manageable Garden lies behind a high brick wall making it very Private and has a path around to the side and rear for maintenance. NO CHAIN. EPC 'D' Council Tax ' D' Freehold
Read more
An Individual Detached Bungalow situated at the end of a quiet Cul de Sac and within walking distance of the Local Shops. The Stylish Accommodation is flexible and at present offers Lounge with Vaulted ceiling, Dining Area, Galley Kitchen, Utility, Study/Bedroom3, Two further Bedrooms, Shower Room and Garage with Mezzanine storage and Electric roller door plus parking in front. The Sunny Manageable Garden lies behind a high brick wall making it very Private and has a path around to the side and rear for maintenance. NO CHAIN. EPC 'D' Council Tax ' D' Freehold
Read less
Important Information
- This is a Freehold property.
| Individual Detached Bungalow - Quiet Cul De Sac |
South Facing Walled Garden |
| Two/Three Bedrooms |
Vaulted Ceiling Living Room |
| Dining Area |
Galley Kitchen and Utility Room |
| Well Appointed Shower Room |
Garage with Electric Roller Door with Mezzanine Storage above |
| Driveway |
EPC 'D' Council Tax 'D' Freehold NO CHAIN |