Book a Property Valuation
Tel No: 01454 858 007

THORNBURY, NR BRISTOL

Guide Price £425,000

4 Bedroom Link Detached House

Ref: B2589

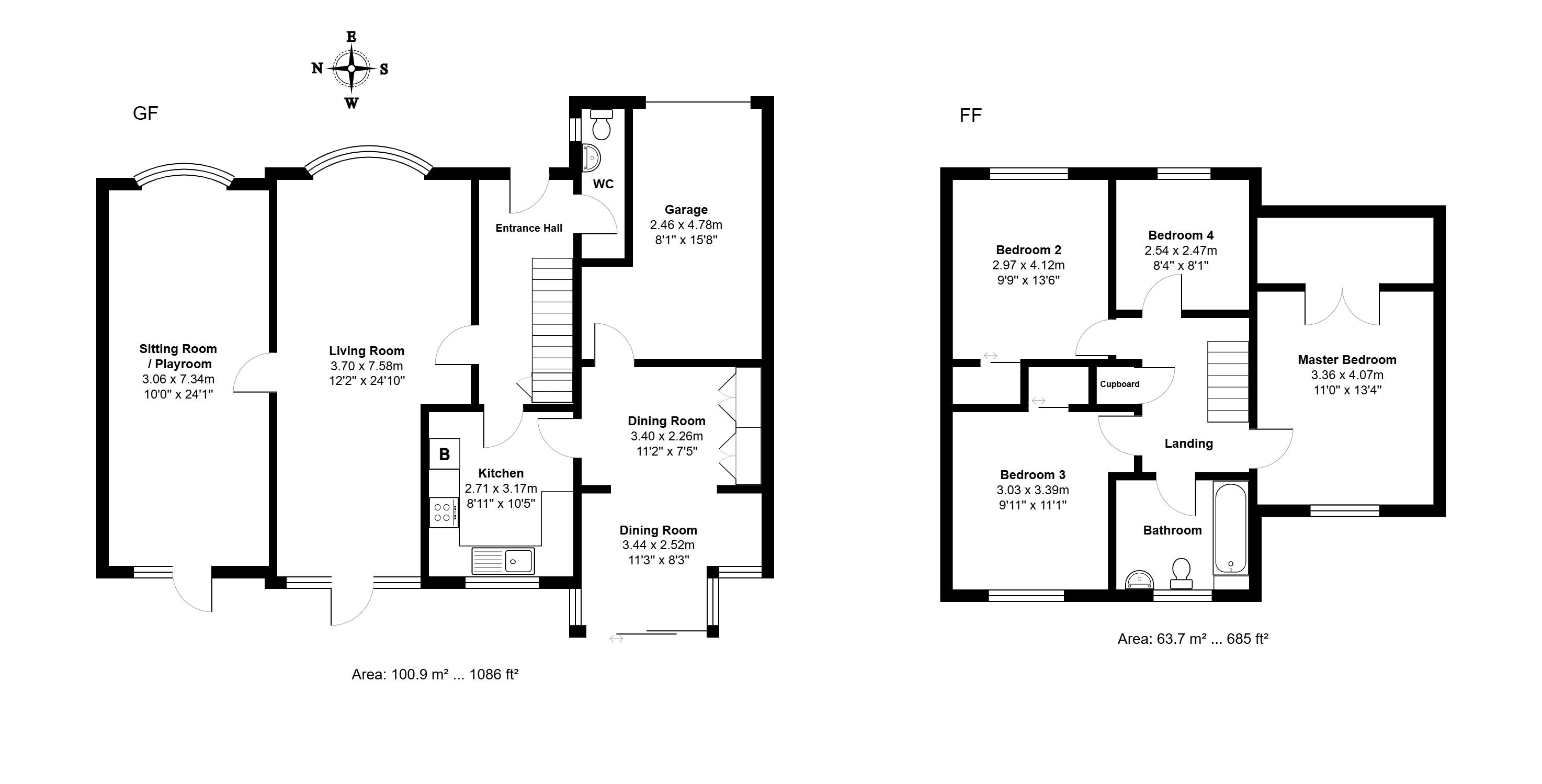
Situated on a Corner plot is this Extended End Link Detached home in need of full modernisation . The present Accommodation includes, Cloakroom, Kitchen, Breakfast Room/Sun Lounge, Lounge/Diner, Playroom/Sitting Room plus Four Bedrooms and Bathroom. Integral Garage and Driveway. Enclosed Rear Garden. NO CHAIN. EPC 'E' COUNCIL TAX 'D' FREEHOLD AND FREE

Read more

Important Information

  • This is a Freehold property.
EXTENDED END LINK DETACHED KITCHEN
LOUNGE/DINER PLAYROOM/GROUND FLOOR BEDROOM
BREAKFAST ROOM/SUN LOUNGE FOUR BEDROOMS
BATHROOM AND GF CLOAKROOM GARAGE AND DRIVEWAY
ENCLOSED REAR GARDEN FULL MODERNISATION REQUIRED

Bonds of Thornbury

Bonds of Thornbury

14 The Plain

Thornbury

Bristol

BS35 2BD

United Kingdom

Tel: 01454 858007
E-Mail: enquiries@bondsofthornbury.co.uk

Arrange a Viewing Videoette Brochure EPC Printable Details Request a Phone Call Request Details E-Mail Agent
Update Cookies Preferences