Book a Property Valuation
Tel No: 01454 858 007

Sawmill Lane, THORNBURY, BRISTOL

Guide Price £325,000

3 Bedroom House

Ref: EAXML14169_12069929
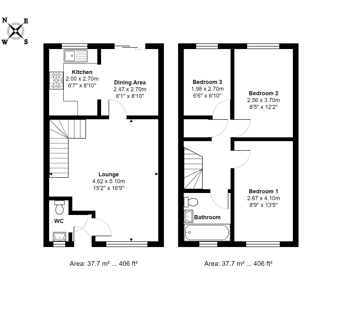
Situated in a small cul de sac not far from the High Street is this mid terraced property. The accommodation comprises lounge, dining area, fitted kitchen, cloakroom, three bedrooms, bathroom, gas central heating. Two parking spaces. Enclosed small rear garden. NO CHAIN EPC 'C' Council Tax 'C' Freehold. Read more

Important Information

  • This is a Freehold property.
Situated in a very popular small cul de sac Mid Terrace close to Town Centre
Two Parking Spaces Lounge
Dining Area and Kitchen Cloakroom
Three Bedrooms Bathroom
NO CHAIN EPC rating 'C' Council Tax 'C' Freehold

epc

Bonds of Thornbury

Bonds of Thornbury

14 The Plain

Thornbury

Bristol

BS35 2BD

United Kingdom

Tel: 01454 858007
E-Mail: enquiries@bondsofthornbury.co.uk

Arrange a Viewing Videoette Brochure EPC Printable Details Request a Phone Call Request Details E-Mail Agent
Update Cookies Preferences