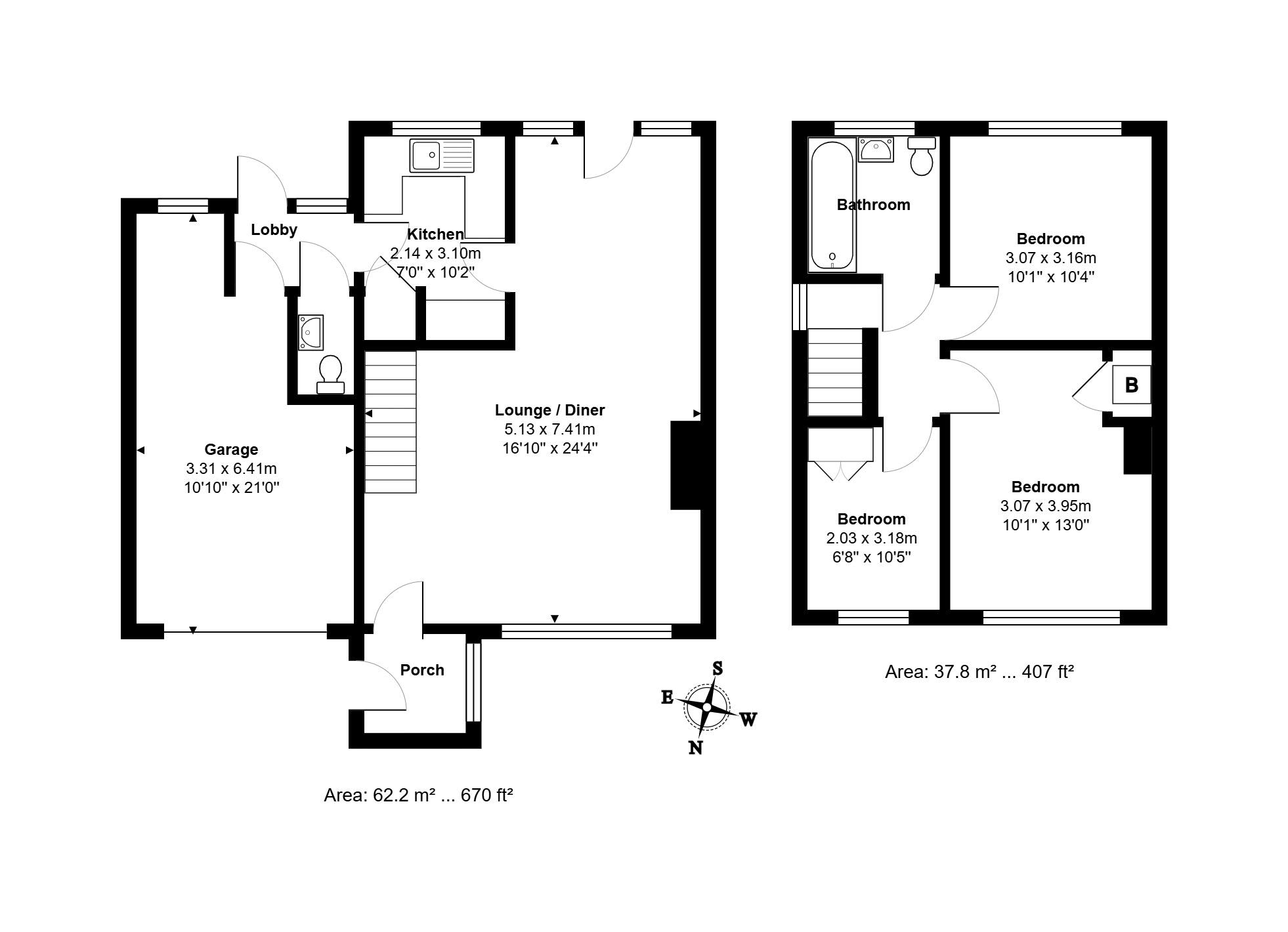
Situated on the Castle Side of Thornbury is this link Detached Family Home within walking distance of Castle School, Manorbrook and St Marys and has been in the same family for many many years and is now ready for updating etc. The property benefits from a Long Rear Garden and offers Lounge/Diner, Kitchen, Rear Porch and Cloakroom, Three Bedrooms, Bathroom, Garage and Driveway. NO CHAIN COUNCIL TAX 'D' EPC 'D'
Read more
Situated on the Castle Side of Thornbury is this link Detached Family Home within walking distance of Castle School, Manorbrook and St Marys and has been in the same family for many many years and is now ready for updating etc. The property benefits from a Long Rear Garden and offers Lounge/Diner, Kitchen, Rear Porch and Cloakroom, Three Bedrooms, Bathroom, Garage and Driveway. NO CHAIN COUNCIL TAX 'D' EPC 'D'
Read less
Important Information
- This is a Freehold property.
| CASTLE SIDE OF THORNBURY |
LINK DETACHEDHOME |
| LONG REAR GARDEN |
LOUNGE/DINER |
| KITCHEN, REAR PORCH AND CLOAKROOM |
THREE BEDROOMS AND BATHROOM |
| GARAGE AND PARKING |
IN NEED OF UPDATING |
| NO CHAIN |
WITHIN WALKING DISTANCE OF THREE SCHOOLS |