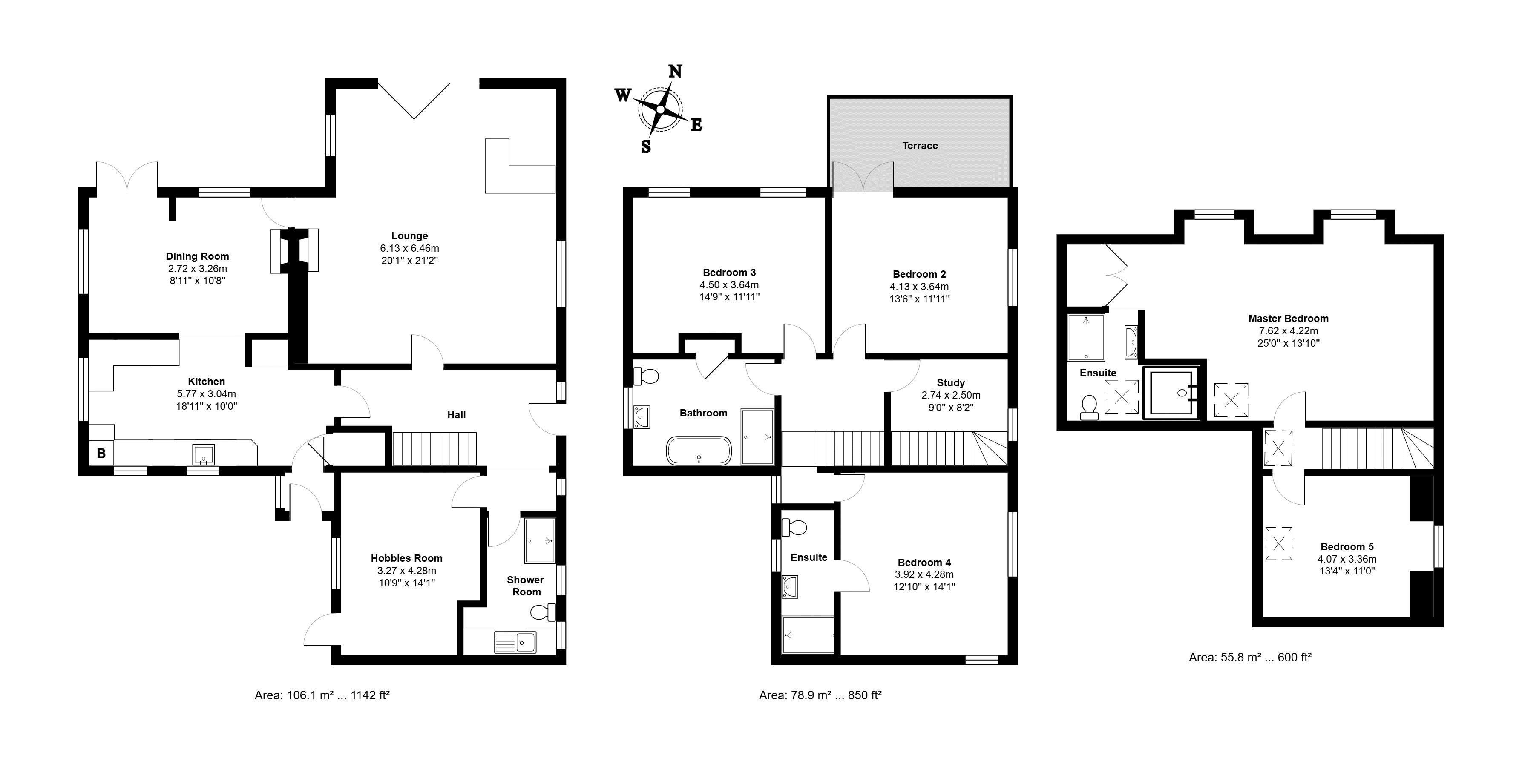
Situated just off the A38 down a small lane, overlooking the River Severn, is this Individual Detached Family home which has been extended and improved by the Present Owners. The Flexible accommodation includes Kitchen/Dining Area, Large Lounge, Playroom (Bedroom 6) Utility room with Shower Facilities, Three Double Bedrooms, one with En Suite and Family Bathroom on the First Floor plus Master Bedroom with En Suite Shower and Bath and Further Double Bedroom on the Second Floor. Garage, Electric charging point and Gardens mainly to the Rear of the property. Bus Stop nearby for Commuters and Teenagers!! Council Tax 'F' EPC 'C' Freehold TOP OF CHAIN COMPLETE AND READY TO GO...
Read more
Situated just off the A38 down a small lane, overlooking the River Severn, is this Individual Detached Family home which has been extended and improved by the Present Owners. The Flexible accommodation includes Kitchen/Dining Area, Large Lounge, Playroom (Bedroom 6) Utility room with Shower Facilities, Three Double Bedrooms, one with En Suite and Family Bathroom on the First Floor plus Master Bedroom with En Suite Shower and Bath and Further Double Bedroom on the Second Floor. Garage, Electric charging point and Gardens mainly to the Rear of the property. Bus Stop nearby for Commuters and Teenagers!! Council Tax 'F' EPC 'C' Freehold TOP OF CHAIN COMPLETE AND READY TO GO...
Read less
Important Information
- This is a Freehold property.
| Individual Extended Detached Family Home |
Two Receptions |
| Large Kitchen/Diner |
Utility with Shower Facilities |
| Three Double Bedrooms, Office Space On FF |
One with En Suite and Family Bathroom |
| Master Bedroom with En Suite on SF |
Further Double Bedroom on SF |
| Gardens Facing the River Severn |
Garage and Driveway |