Book a Property Valuation
Tel No: 01454 858 007

HORTHAM VILLAGE, ALMONDSBURY

Guide Price £425,000

4 Bedroom Town House

Ref: EAXML14169_12809334
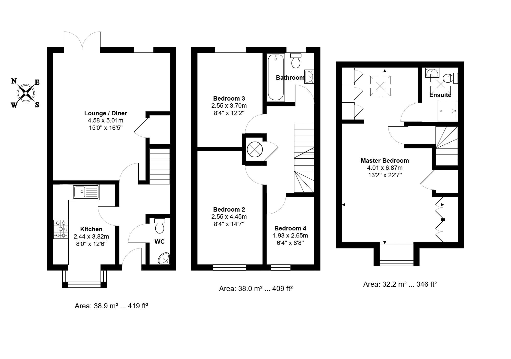
AN IMMACULATE THREE STOREY HOME WITH LOUNGE/DINER, FITTED KITCHEN, CLOAKROOM, MASTER BEDROOM WITH DRESSING ROOM AND EN SUITE, THREE FURTHER BEDROOMS, FAMILY BATHROOM, GARAGE AND TWO PARKING SPACES. ENCLOSED REAR GARDEN. SERVICE CHARGE FOR GROUNDS AND PARKING AREAS APPROX. £50.00 PCM. FREEHOLD COUNCIL TAX ''D' EPC 'C' Read more

Important Information

  • This is a Freehold property.
TOWN HOUSE GARAGE TO REAR AND PARKING
MASTER BEDROOM WITH DRESSING AREA AND EN SUITE FITTED KITCHEN
LOUNGE/DINER THREE FURTHER BEDROOMS
FAMILY BATHROOM AND CLOAKROOM ENCLOSED REAR GARDEN
SERVICE CHARGE APPROX £50 PCM COUNCIL TAX 'D' EPC ' C' FREEHOLD

Bonds of Thornbury

Bonds of Thornbury

14 The Plain

Thornbury

Bristol

BS35 2BD

United Kingdom

Tel: 01454 858007
E-Mail: enquiries@bondsofthornbury.co.uk

Arrange a Viewing Videoette Brochure EPC Printable Details Request a Phone Call Request Details E-Mail Agent
Update Cookies Preferences