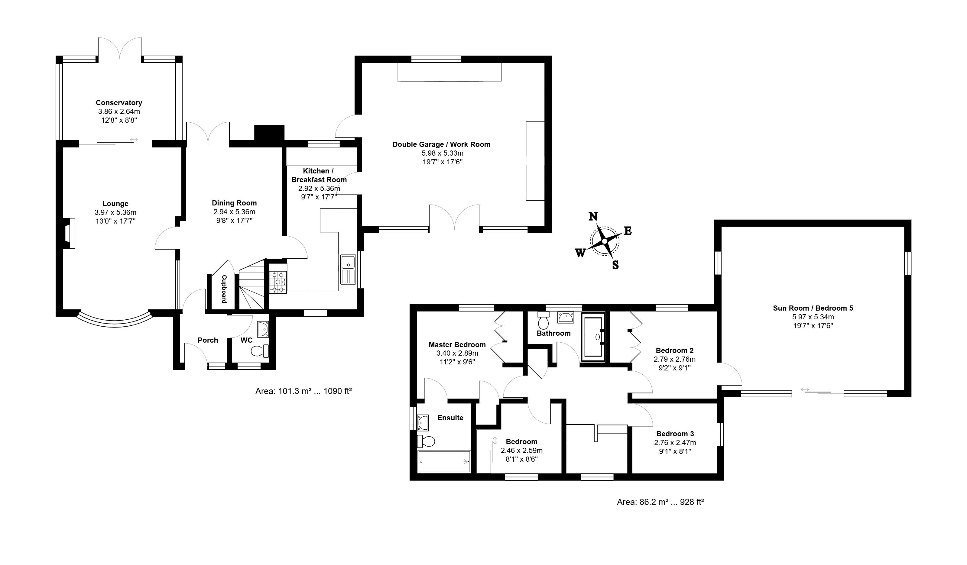
Situated on a Small Development built by Monty Benson 40 years ago, is this Extended Detached Home with easy access to both Motorway and A38. The property previously had a Double Garage but the present owner has changed it now to a Store/Workshop with Glazed door across the front and built a huge Sitting Room or Master Bedroom above it. The Characterful Accommodation offers Two Receptions, Refitted Kitchen/Breakfast Room, Cloakroom, Master Bedroom with En Suite, Three Further Bedrooms and Large FF Sitting Room . The property has a lovely enclosed garden to the rear with access to both sides plus Driveway for at least two vehicles. Oil Fired CH, Double Glazing . EPC'D' Council Tax 'E' Stroud DC Freehold and Free
Read more
Situated on a Small Development built by Monty Benson 40 years ago, is this Extended Detached Home with easy access to both Motorway and A38. The property previously had a Double Garage but the present owner has changed it now to a Store/Workshop with Glazed door across the front and built a huge Sitting Room or Master Bedroom above it. The Characterful Accommodation offers Two Receptions, Refitted Kitchen/Breakfast Room, Cloakroom, Master Bedroom with En Suite, Three Further Bedrooms and Large FF Sitting Room . The property has a lovely enclosed garden to the rear with access to both sides plus Driveway for at least two vehicles. Oil Fired CH, Double Glazing . EPC'D' Council Tax 'E' Stroud DC Freehold and Free
Read less
Important Information
- This is a Freehold property.
| Extended Detached Family Home |
Two/Three Receptions |
| Four/Five Bedrooms |
Refitted Kitchen/Breakfast Room |
| Cloakroom, Family Bathroom, En Suite |
Workshop/Store/Garden Room PREVIOUSLY Double Garage |
| Enclosed Rear Garden wth access to both sides |
Driveway with Parking for Two/Three Cars |
| Oil CH, Double Glazing |
EPC 'D' Council Tax 'E' Freehold and Free NO CHAIN |